- Berkshire Farmhouse
Neutral colours and natural finishes create a welcoming space, as warm as the AGA
- Employer
- Ben Heath Interiors
- Year
- Software
- Autokitchen
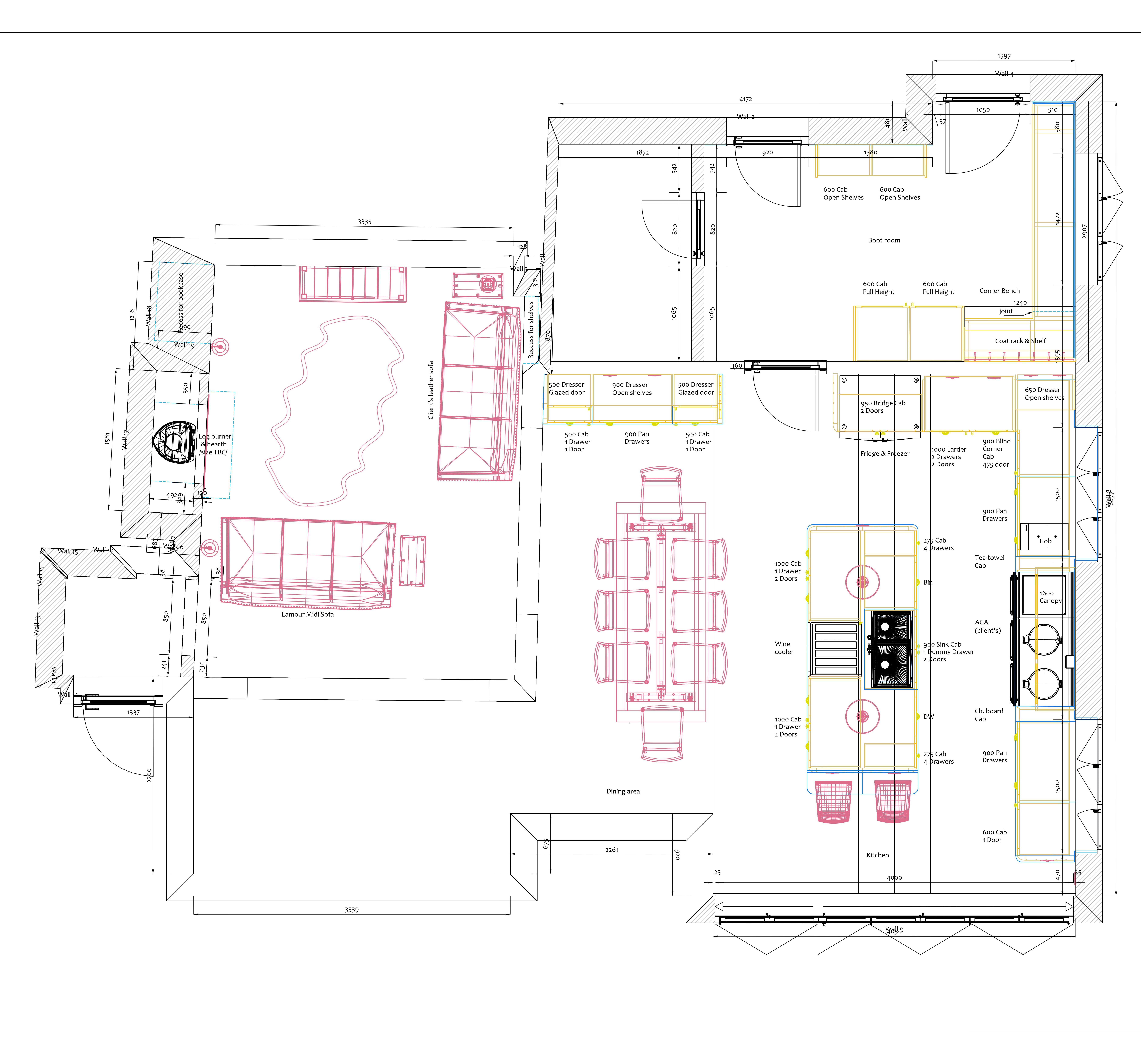
Overview
This project started with a small kitchen being situated in the centre of the client’s Ground Floor. Our team proposed a revised layout that better utilizes the light and view of the garden, by bringing the Kitchen-Diner closer to the patio doors and leaving the living room in a darker, cosier part of the house.
Apart from designing, I was also in charge of project managing and scheduling all contracted trade work for this bespoke project, as the client requested a full turn-key solution. I collaborated with Ben Heath’s workshop team to deliver all bespoke joinery solutions for the client’s Kitchen, Dining room and Boot room. I also worked with the client on achieving a coherent FF&E scheme throughout, specifying and supplying bespoke table, lighting, sofas for their Snug and Neptune dining chairs.
The final space is balanced and symmetrical. The colours, wooden finishes, natural granite worktops and limestone flooring bring the outdoors in. The Boot room continued the main room’s theme and was very important to the client, as it was most often used as the main entrance to the Farmhouse.
I produced technical drawings, such as Service and Lighting plans, for best communication with tradesmen.

